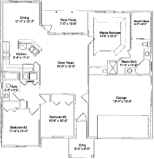
The Norwood - Lot 20, Phase II

$165,900
(including the lot and upgrades listed below)
1464 Sq. Ft. Heated and Cooled
2044 Sq. Ft. Total Area

Upgrades Included

• Laminate Flooring in the Dining Room, Great Room and Foyer
• White Over the Range Microwave

 

Specifications & Standard Features

Foundations:

Four inch thick, 3000 PSI concrete slab with wire mesh and fiber in the concrete over a visqueen vapor barrier. Pre-treated under the slab to prevent subterranean termites.

Framing:

2 x 4 interior walls and 2 x 4 exterior walls with OSB sheathing and a vapor barrier. OSB roof sheathing on pre-engineered wood roof trusses. Mechanical framing connectors as required to comply with wind load engineering.

Exterior finish:

Low maintenance construction. Four inch brick exterior face. Painted hardiplank siding on gables. Single hung, white vinyl, tilt out, double pane, insulated windows with “Low E” glass and window screens. Insulated galvanized steel exterior doors with wood jambs. Pre-finished aluminum eve drips, facias and ventilated soffits. 25 years warranty, 3 tab fiberglass shingles. Galvanized metal valley and wall flashing.

Insulation:

R-30 fiberglass blankets in the ceilings. R-15 “JM Spider” fiberglass, blown in the exterior walls cavities. “Spider” insulation is non-settling, improves energy efficiency, contains a mold inhibiter and reduces sound transmission from outside noise.

Mechanical:

Carrier, 13 SEER, high efficiency PURON heat pump AC/Heat with “Spaceguard” filtration system and a digital thermostat. Exterior venting for bath exhaust fans and clothes dryer. Lighted, 2 speed range hood vented to the exterior.

Electrical:

A $600 allowance is provided for the decorative light fixtures and fans. Pre-wired for (5) cable television outlets and (4) telephone outlets. GFI outlets located per code. Weatherproof exterior outlets on porches. (5) Smoke detectors wired-in with battery back up. An interior door chime with lighted button at front door. Bedrooms and living room pre-wired for ceiling fans.

Plumbing:

Stainless steel kitchen sink and white porcelain bathroom sinks. Single lever, polished chrome faucets in kitchen in kitchen and baths. Water conserving toilets. Washer and dryer connections. (4) exterior hose bibs.

Appliances:

An $800 allowance provides a white electric range and a white built-in dishwasher.

Interior Finishes:

Hard coat plaster walls and ceilings (1/2" sheet rock on walls, 5/8" on ceilings). Painted walls, ceilings and trim. Marble windowsills. Custom-made, laminate cabinetsin the kitchen and the bathrooms. 2-panel molded Masonite, pre-hung interior doors with brushed nickel hardware. Quality carpet installed over an 8lb pad except for ceramic tile in the entry, kitchen, laundry and bathrooms. Mirrors over bathroom vanities.

Site Improvements:

Concrete driveway and walk from driveway to porch. Approximately 5000 sq. ft. of St. Augustine or Bermuda sod is provided for the yard. plants and mulch for the front flower bed is provided under a $250 allowance.

 

Note: Floor plan and elevations are subject to change. Floor plan dimensions are approximate. Consult working drawings for actual dimensions and other information. Prices are subject to change without notice.

 

HOME   MODEL HOMES   AVAILABLE HOMES   BUILD YOUR OWN   MAP OF LOTS   FINANCING   CONTACT US
Cottages of Country Way by Norfleet Construction - 25178 SW 20th Ave, Newberry, FL (352) 472-5780      website by Hasz Studios LLC